ごきげんよう!
ROOMIQ(ルーミック)西中島店の物件博士です!!
本日は昨日に引き続き
大人気シリーズ『プレサンス』より築浅1Kのご紹介です!
昨日同様、御堂筋、阪急と大阪の主要交通にアクセス良好な好立地☆
一人暮らしはココで決まりです!!!
「プレサンスOSAKA西中島リエゾン」について
「プレサンス西中島南方セレスト」の物件概要

| 所在地 | 大阪府大阪市淀川区西中島2丁目8-12 |
|---|---|
| 最寄駅 | Osaka Metro御堂筋線/西中島南方駅 徒歩8分 |
| 築年数 | 2022年1月 |
| 間取り | 1K |
| 構造 | 鉄筋コンクリート造 |
- ジャパン十三店 1184m
- ライフ十三東店 271m
- スーパー玉出淀川店 572m
- ダイエー西中島店 552m
- セブンイレブン大阪木川西淀川通店 315m
- 薬ヒグチ西中島店 511m
- 十三病院 852m
\ 地域の特性を知りたい方へ /
「プレサンスOSAKA西中島リエゾン」の室内詳細
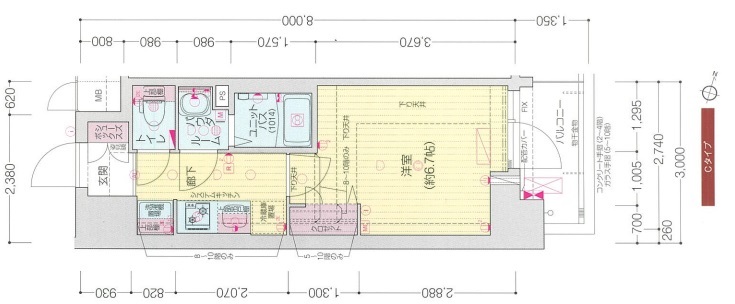
間取り

分譲賃貸 / システムキッチン / 給湯 / 洗髪洗面化粧台 / CATV / CSアンテナ / BSアンテナ / 宅配ボックス / 駐輪場 / 温水洗浄便座 / 浴室乾燥機 / 独立洗面台 / 防犯カメラ / 全居室収納 / クローゼット / シューズボックス / 照明器具付き / オートバス / 水道(公営) / ガス(都市) / 排水(下水) / バス・トイレ別 / シャワー / コンロ種別(ガス) / コンロ口数(二口) / エアコン / 室内洗濯機置き場 / オートロック / エレベータ / バルコニー / フローリング / internet対応(光ファイバー) / TVドアホン / ごみ出し24時間OK / インターネット利用料無料 / カード決済(初期費用) / 最上階 / 礼金なし / 敷金なし
※設備をクリック頂くと設備で条件を絞ることが可能です
LDK/洋室

落ち着いた色味でゆっくりとしてますね。
とてもお洒落ですね♬
キッチン

斜めのコンロ使いやすそうです☆
調理場、シンクも広々です!
バスルーム

清潔感のある広々としたお風呂です☆
クローゼット

お一人暮らしにはちょうどいい収納です👍
工夫すればたくさん収納できますよ!
トイレ

清潔感のあるウォシュレット付きトイレ!
築浅なので水回りは文句なし綺麗さです!
眺望

日当たり良好で快適に心地良く住んでいただけます☆
こんな条件でお探しの方にオススメ
住みたい条件をお聞かせください
その他の条件
お部屋探しでお困りの方へ
不動産のことは弊社にお任せください!!
賃貸に売買、リフォームに管理等、弊社では総合不動産業を営んでいるので
精通したスタッフが多数在籍しております!!
お客様に安心と信頼をお届けさせていただきます!!
また淀川区・吹田市・東淀川区・北区・中央区等の物件を多数取り揃えております。
他社様ではいい物件が見つからなかったお客様も弊社なら素敵なお部屋が見つかるまでサポートさせていただきます。弊社HPには他社様ではご紹介できない物件も多数取り揃えておりますので、ぜひご覧ください。
また、内覧は当日、ご予約なしでも受け付けておりますので、飛込のお客様も安心して
ご来店ください。たくさんの物件をご紹介させていただきます。
また遠方のお客様にはオンラインにてすべての手続きを完結できるようなプランも
ご用意しておりますので是非、ご検討ください。
不動産のことはぜひ、ROOMIQ西中島店へご相談ください。
もちろんご相談は無料です!!
お問合せお待ちしております!!